Vermietet 2.620 € Kaltmiete - Wohnung
Heller, hochwertiger Neubau in sehr zentraler Lage mit viel Komfort in schönem Innenhof. Sehr guter Energiewert.
Kaltmiete: 2.620 EUR
Nebenkosten: 470 EUR
Warmmiete: 3.090 EUR
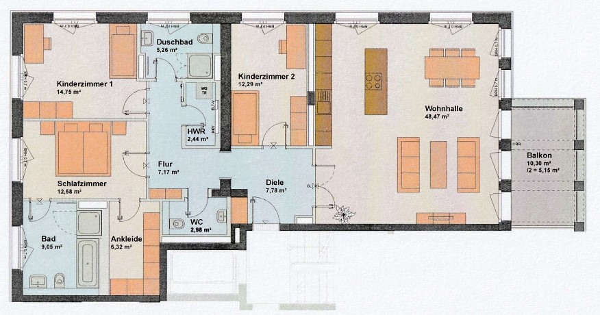
Ausstattung
– großzügiger Wohn-/Essbereich
– 3 Schlafzimmer, 1 Ankleide
– Parkettboden mit Fußbodenheizung
– großer Balkon nach Süden
– moderne Einbauküche
– Bad mit Wanne, Dusche und Fenster
– Bad mit Dusche plus Gäste-WC
– Jalousien an allen Fenstern
– Hauswirtschaftsraum und Kellerraum
– Tiefgaragen-Stellplatz (130 €/Monat)
– ebenerdiger Aufzug
– Videogegensprechanlage
– Fernwärme-Zentralheizung
– Kellerraum
Lagedetails
– Nebenstraße am Kurfürstendamm
– Einkaufen, Restaurants, Cafés fußläufig
– BVG-Anbindung: U Adenauerplatz (U7)











